kledek@yandex.ru
8 800 770-76-03
Заказать звонок
Рассчитать свой проект
Меню
Главная
Технология
Производство
О нас
Фотогалерея
Контакты
Дом до 100 кв.м
Дом 100-200 кв.м
Дом от 200 кв.м
Бани
Малые Формы
Главная
Проекты домов из клееного бруса от 100 до 200 кв. м.
Проект Д 175 м.кв.
распечатать
Назад
Задать вопрос
Перезвонить мне
Узнать стоимость
Проект "Проект Д 175 м.кв."
Площадь: 175 м
2
КДК
199
Стоимость комплекта
от
5820000
руб.
картинка 1
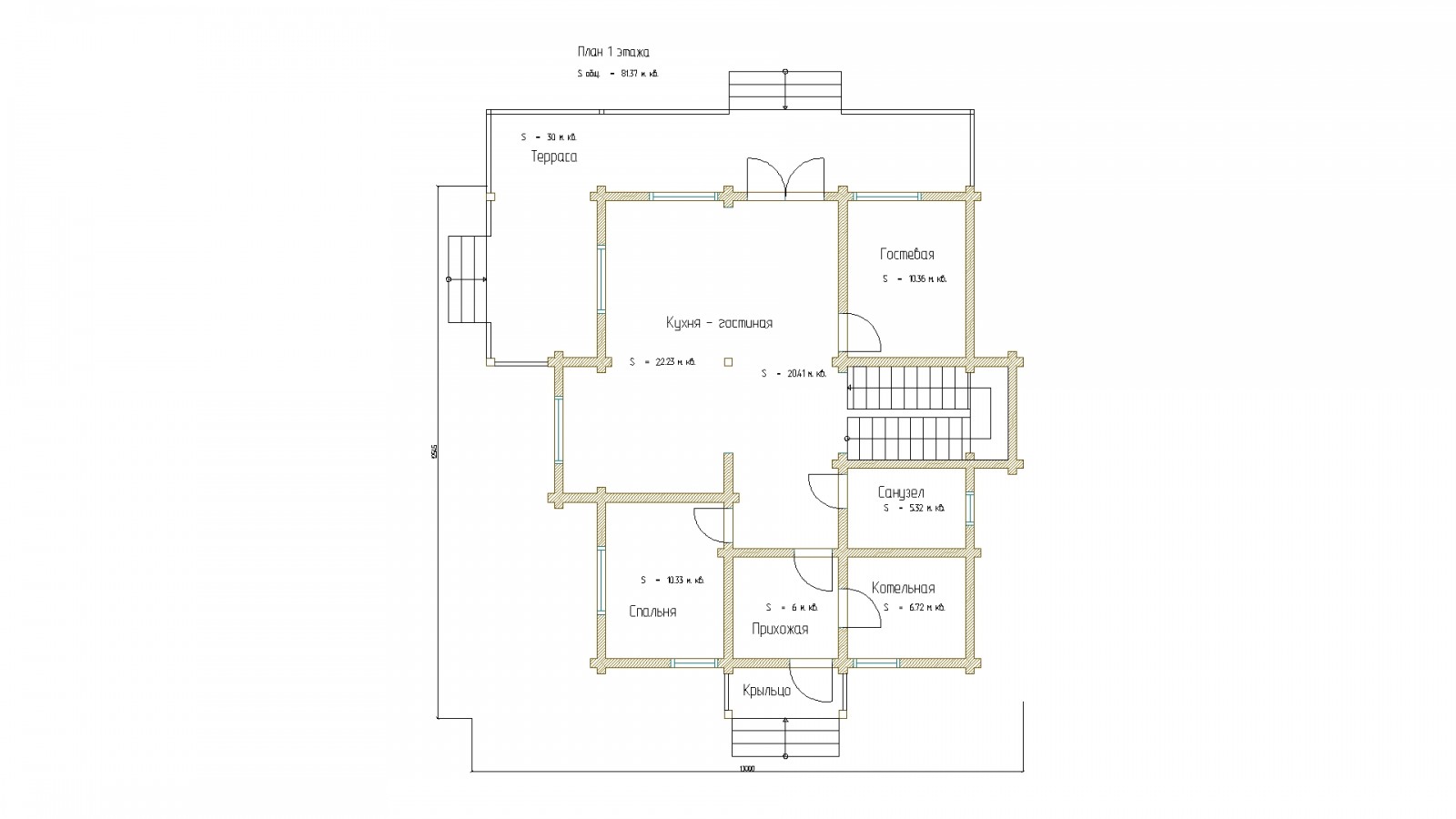
Первый этаж
Второй этаж
Параметры проекта:
Параметры проекта:
Площадь: 175 м
2
Площадь 1 этажа: 81.37 м
2
Площадь 2 этажа: 93.56 м
2
Наш телефон
8 800 770-76-03
Остались вопросы? Задайте их нам
Задать вопрос
Узнать стоимость