kledek@yandex.ru
8 800 770-76-03
Заказать звонок
Рассчитать свой проект
Меню
Главная
Технология
Производство
О нас
Фотогалерея
Контакты
Дом до 100 кв.м
Дом 100-200 кв.м
Дом от 200 кв.м
Бани
Малые Формы
Главная
Проекты домов из клееного бруса от 100 до 200 кв. м.
Дом 13x9 В2
распечатать
Назад
Задать вопрос
Перезвонить мне
Узнать стоимость
Проект "Дом 13x9 В2"
Площадь: 153 м
2
КДК
63
0%
Стоимость комплекта
от
3960000
руб.
картинка 1
Картинка 2
Картинка 3
Картинка 4
Картинка 5
Картинка 6
Первый этаж
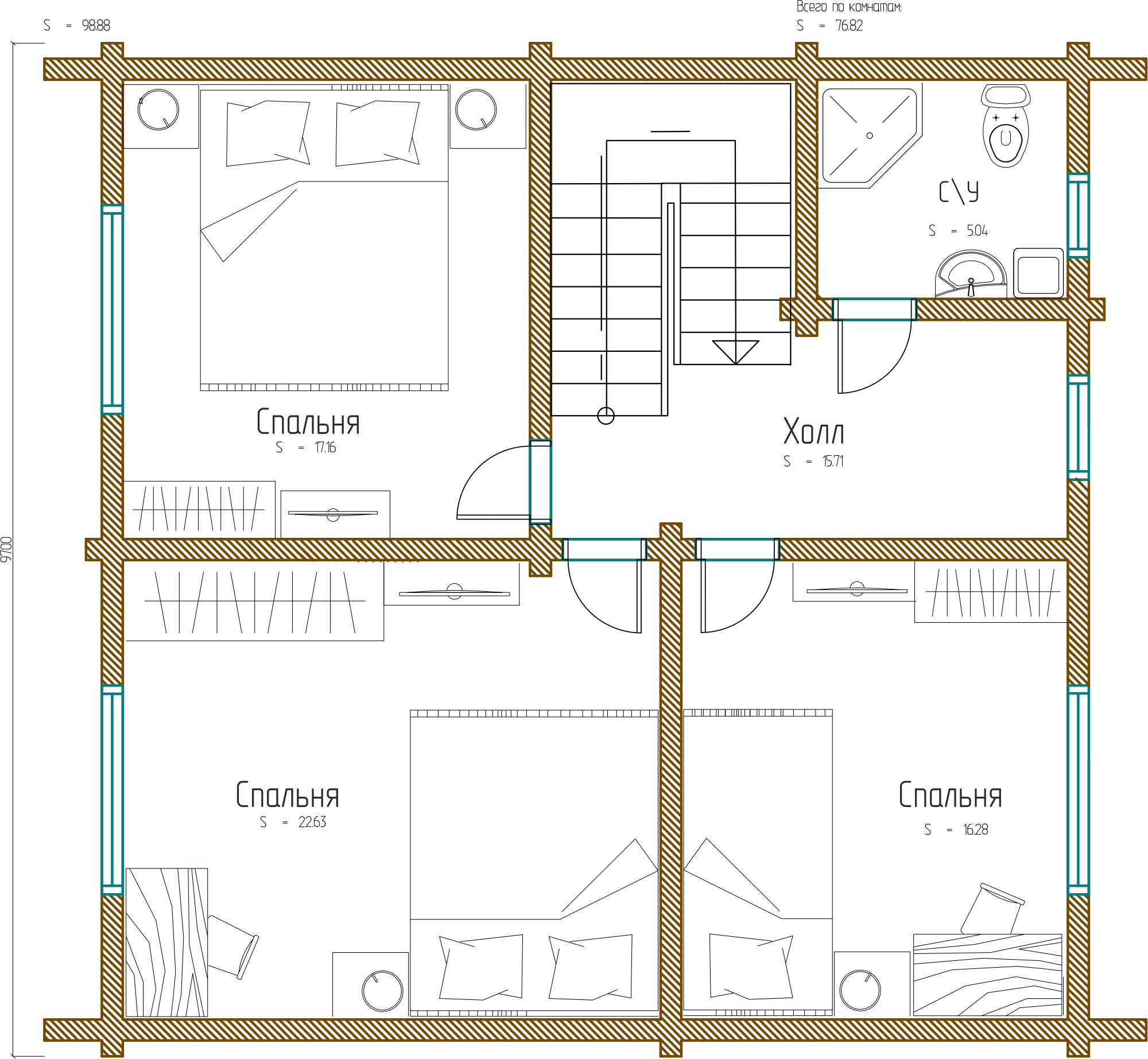
Второй этаж
Параметры проекта:
Параметры проекта:
Площадь: 153 м
2
Площадь 1 этажа: 70 м
2
Площадь 2 этажа: 47 м
2
Наш телефон
+7 (4852) 943-640
Остались вопросы? Задайте их нам
Задать вопрос
Узнать стоимость