kledek@yandex.ru
8 800 770-76-03
Заказать звонок
Рассчитать свой проект
Меню
Главная
Технология
Производство
О нас
Фотогалерея
Контакты
Дом до 100 кв.м
Дом 100-200 кв.м
Дом от 200 кв.м
Бани
Малые Формы
Главная
Проекты домов из клееного бруса от 100 до 200 кв. м.
Булгаков
распечатать
Назад
Задать вопрос
Перезвонить мне
Узнать стоимость
Проект "Булгаков"
КДК
79
Стоимость комплекта
от
5040000
руб.
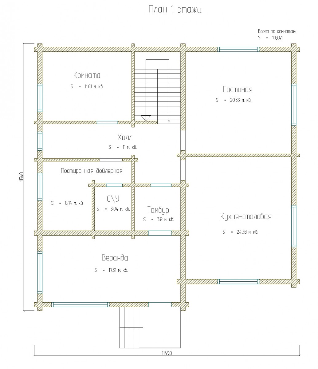
Первый этаж
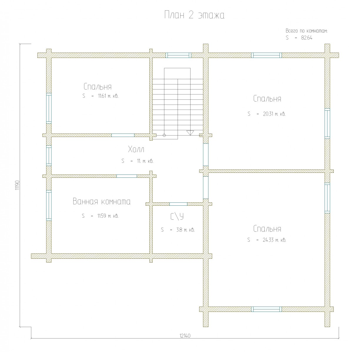
Второй этаж
Параметры проекта:
Параметры проекта:
Площадь 1 этажа: 103.41 м
2
Площадь 2 этажа: 86.84 м
2
Наш телефон
8 800 770-76-03
Остались вопросы? Задайте их нам
Задать вопрос
Узнать стоимость